このページを印刷する
- 価格
-
1億980万円
- 間取
-
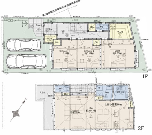
3LDK
| 所在地 | 東京都杉並区善福寺4丁目 |
|---|---|
| 交通 |
|
| 築年月 | 2025年9月(築3ヶ月) | 新築/中古 | 新築 |
|---|---|---|---|
| 面積 | 97.07m²(29.36坪) | 計測方式 | 壁芯 |
| バルコニー | 向き | ||
| 建物階数 | 地上2階 | 所在階 | |
| 部屋番号/区画番号 | --- | 総戸数/総区画数 | --- |
| 建物構造 | 木造 | ||
| 間取内容 | |||
| 駐車場 | 取引態様 | 仲介 | |
| 引渡/入居時期 | 即時 | 現況 | 空家 |
| 地目 | 宅地 | 用途地域 | 第一種低層住居専 |
| 土地面積 | 97.79m²(29.58坪) | 土地面積計測方式 | |
| セットバック | 有 | セットバック面積 | 1.12m² |
| 建ぺい率 | 40% | 容積率 | 80% |
| 土地権利 | 所有権 | 接道状況 | 一方 |
| 接道方向1 | 北西 | 接道間口1 | 約6.2m |
| 接道種別1 | 公道 | 接道幅員1 | 約4.0m |
| 位置指定道路1 | |||
| 国土法届出 | 不要 | ||
| 周辺環境 | |||
| 設備・条件 |
|
||
| 物件カテゴリー | |||
| 自社物 | 先物 | 状態 | 売出中 |
| 物件番号 | 336 | ||
| 情報登録日 | 2025年9月26日 | 情報更新日 | 2025年12月8日 |
西武新宿線急行停車駅「上石神井」徒歩13分、
スーパーやコンビニが近隣に点在している利便性良い住環境。
近くには敷地が大きく、緑豊かな善福寺公園があります。
LDK20帖以上のゆとりある3LDK、駐車場2台分有り。
是非、ご覧ください!
物件掲載内容と現況に相違がある場合は現況を優先といたします。
物件周辺マップ
Loading...
ご注意
- 物件によっては正確な位置を示していない場合がございます。
- 現況が表示された内容と異なる場合は現況優先といたします。
- 表示されてる地図はGoogle社より提供されてるデータに基づいたものであり、表示内容についての責任は負いかねます。








